Plot for Sale in Mijas, Malaga

  • €395,000
  • 684 m² plot
  • Near Beach

Description

Prime Urban Plot in Vista Verde with Architect Project Included – €395,000

Discover an exceptional opportunity to build your dream villa in the sought-after residential area of Vista Verde, Mijas. This urban plot of 684 m² offers a peaceful setting surrounded by nature, yet perfectly located just minutes from the vibrant centres of Fuengirola, La Cala de Mijas, and Mijas Pueblo.
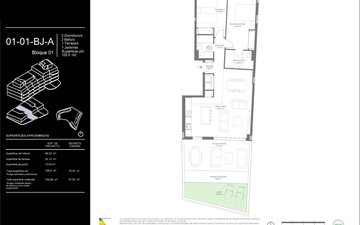
The land is classified as "Urbano – Suelo sin edificación", giving you full flexibility to design and build a custom home. A major advantage of this plot is that it already comes with professional architectural drawings, providing a modern villa concept and saving you months of planning work.
Please note: The project has not yet been approved by the townhall, allowing the new owner to modify or adapt the design to their personal preferences before submitting for planning permission.

Key Features
Plot size: 684 m²
Urban land (Urbano)
Located in the established area of UR Vista Verde 18, Mijas (Málaga)
Architectural project included (not yet approved by Ayuntamiento)
Quiet residential environment with excellent accessibility
Short drive to beaches, restaurants, golf courses, and international schools
This is a rare chance to secure a well-located plot with a head start on design, giving future owners the opportunity to create a bespoke villa in one of Mijas' most desirable neighbourhoods.

For buyers seeking a personalised dream home or investors looking for a profitable development opportunity, this plot represents outstanding value at €395,000.

Contact us today for the full project details, site visit, and guidance on the approval process.

Reference: MMV-13191-R5230225

Listing date: 11/03/2026

Location

Related Searches