Villa for Sale in Aspe, Alicante

  • €563,000
  • 4 beds
  • 3 baths
  • 183 m²
  • 13172 m² plot
  • Pool
  • Near Beach

Features

  • Garden, Gated

Description

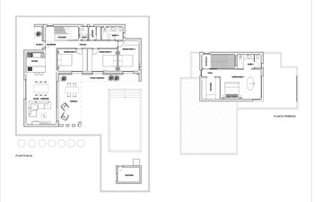
THIS PROPERTY INCLUDES A 1% WELCOME ESTATES GIFT! Which can be redeemed for white goods, furniture lighting and much more. Newly built villas situated in the municipality of Aspe.Newly built villas with several models to choose from, with 2, three or four bedrooms, on one or two floors and built with slabs or with a structure: depending on the model and the plot chosen, the exact price will be calculated.All the villas are built on rustic plots of over 10,000m2, of which around 2,500m2 will be fenced off.The villas have an open-plan kitchen with living room, built-in wardrobes, private swimming pool, porch, storage room and outdoor parking space.There are several plots to choose from. The price is based on a plot priced at €75 000 (if another plot is chosen, the difference will be paid or credited according to the price of the plot).Self-build project, delivery in approximately 12 months from the granting of the licence.If you are looking for a quiet environment, very near to typically Spanish villages away from tourist crowds, surrounded by mountains, with a very large plot and about thirty minutes from the sea, this is your home.Aspe is a typically Spanish village with all the amenities for everyday life, surrounded by mountains and with several natural areas nearby where you can go hiking or mountain biking.Located twenty-five kilometres from the beach, nine kilometres from Elche and about twenty kilometres from Alicante airport.799

Reference: MMV-9744-N8936

Listing date: 12/03/2026

Location

Related Searches