Villa for Sale in Costa Blanca Moraira, Alicante

  • €1,495,000
  • 3 beds
  • 2 baths
  • 193 m²
  • 1350 m² plot
  • Pool
  • Air Conditioning
  • Near Beach

Features

Description

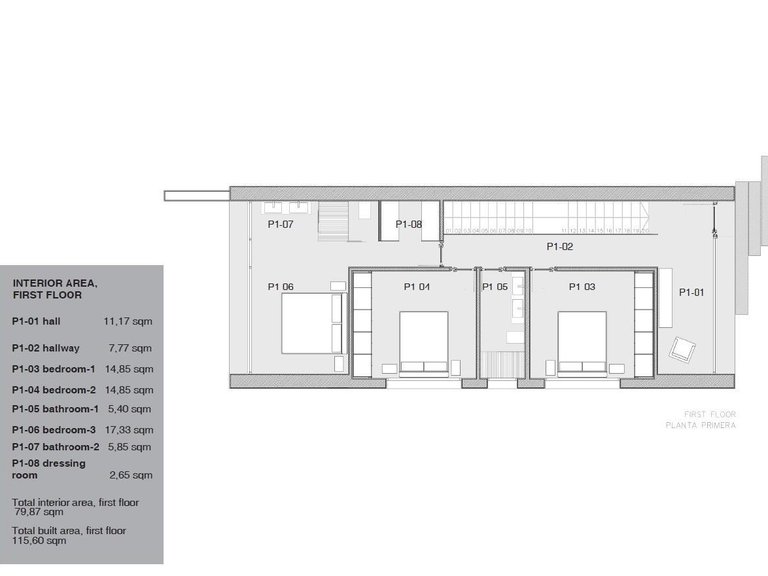
Modern design villa project with pool and sea views for sale in Moraira El Portet, just 5 minutes drive to the famous sandy beach, El Portet.Excellent location in residencial area with larger then average plots and established infrastructure. The plot is completely flat and has an easy access. From the villa you can enjoy sea views.The project consists of two heights. The day program is located on the diaphanous ground floor, articulated with an interior patio of 38 m2 that can be linked or disconnected from the day area according to the need, thanks to a sliding door. It has a terrace of 100 m2 and a private pool of 10 x 3.5 m.A large volume on the first floor contains the night program with 3 bedrooms. One master bedroom with en-suite bathroom and a second shared bathroom for the other 2 bedrooms.Ducted air conditioning (hot/cold) in all rooms with independent control in each room. Aluminium carpentry with thermal bridge break and double glazing under emissive. Floor tiles in cement gray.Oustanding design by prize-winning architect.Our in-house architect Dalia Alba Our in-inhouse interior designer Luna Alba - Lemon Design StudioDesign Villas Moraira also offers a dedicated construction team

Reference: MMV-8996-MDV23040X

Listing date: 14/03/2026

Location

Related Searches