Villa for Sale in La nucia La Nucía, Alicante

  • €494,221
  • 3 beds
  • 3 baths
  • 167 m²
  • 239 m² plot
  • Pool
  • Air Conditioning
  • Garage

Features

  • Parking
  • Pool Own
  • Air-Conditioning
  • Garden

Description

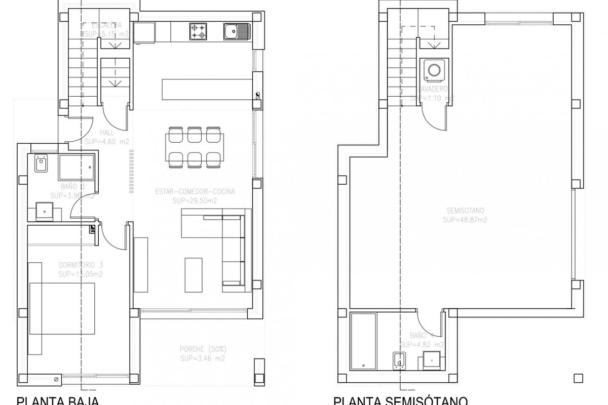
Project of 13 single-family homes, with a private pool . Homes built with you in mind. In an unbeatable environment. Owners are offered the possibility of making any type of modification they wish. They are made up of a ground floor and a first floor, with a semi-basement and a swimming pool. Each house has its private plot, with sea views from Solarium Plant. The living room, dining room and kitchen are distributed on the ground floor, through a permeable hall with wooden slats, separating the bathroom and bedroom area. Access to the pool area is at the same level as the house. On the first floor there are two en-suite bedrooms with their terraces. In the corridor there is access to the solarium, which is the flat roof of the house. In the semi-basement floor there is a fourth bedroom, bathroom, leisure area and garage space. Depending on the plot, up to two parking spaces. The houses are in a place surrounded by nature and tranquility with views of the sea. Built with top quality materials. We invite you to come and see the show house.

Reference: MMV-13-4927-TE-C/10244

Listing date: 27/02/2026

Location

Related Searches